Продам Квартиру
Владимирская область , Боголюбово
Молодежная, 5
Подробная информация star_border
attach_money
1 560 000 р.
Торг: Без торга
assignment_late
Тип недвижимости: В стадии строительства
Тип постройки: Блоки
Состояние: Черновая отделка
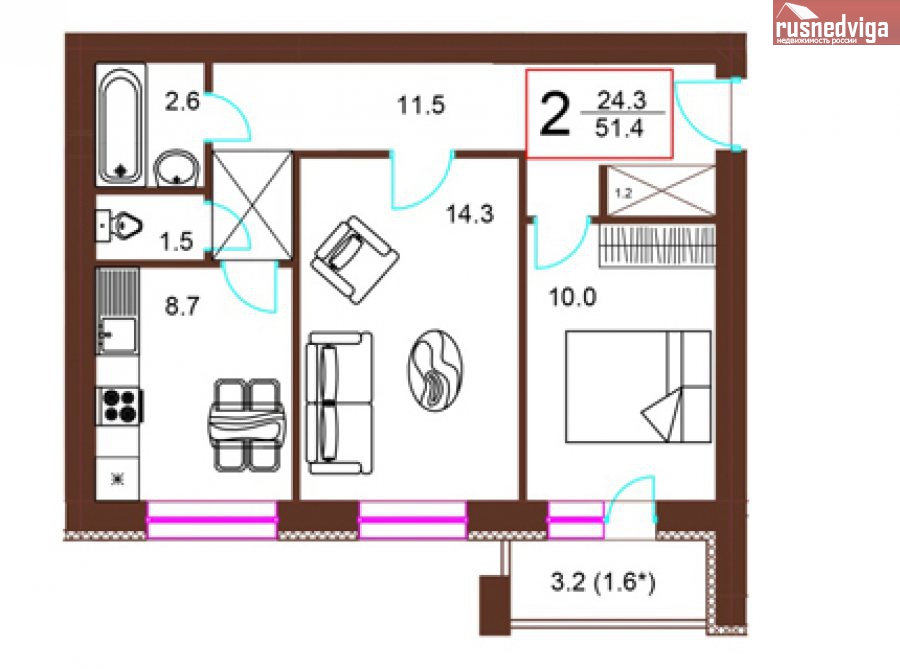
Количество комнат: Две
Общая площадь, m2: 52
Жилая площадь, m2: 25
Этаж: 2
Этажей в доме: 3
Лифт: Отсутствует
Окна: Пластиковые
Полы: Бетон
local_library

2-х комн. квартира, "новостройка", в новом жилом микрорайоне пос. Боголюбово. 2/3 кирп., 52/25/9, с/узел раздельный, лоджия, комнаты изолированны. Квартира не угловая с индивидуальным отоплением, строительная отделка. Рядом пруд. Сдача май 2015г.

Дополнительно
receipt
place
local_phone
+7 (905) 610-8379
local_phone
Максим
c 10:00 до 22:00
Полная версия объявленияopen_in_new